Chủ nhà (nam giới) sinh 1959, năm Âm lịch Kỷ Hợi, mệnh bình địa mộc thuộc quái Khôn. Các bước thực hiện của phong thủy như sau:
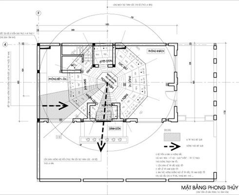
Xác định tâm nhà.
Vị trí cửa chính điều chỉnh theo hướng Tây Bắc, cụ thể là cung Kiền, cung Hợi được vượng tài, hưng phúc. Theo bát quái, hướng Tây Bắc được Diên Niên (phúc đức) rất tốt với quái Khôn.

Sơ đồ ứng dụng phong thủy cho chủ nhà sinh năm 1959.
Chủ nhà quái Khôn mở cửa cái hướng Kiền (Tây Bắc) được Diên Niên, lời tượng "thiên môn đáo địa chủ vinh hoa". Ý nghĩa: thiên môn là cửa trời, ám chỉ vào Kiền Đáo Địa là đến đất, ám chỉ vào Khôn. Chủ tại Khôn, cửa tại Kiền là căn nhà giàu có, vẻ vang. Từ cửa Kiền biến ba lần tới Khôn được Diên Niên.
Diên Niên lâm khôn tương sinh đắc vị đem vượng khí cho tây tứ trạch, ứng người điều cát tường, vợ chồng chính phối (có đủ âm dương), một nhà hoàn mỹ, con hiếu thảo, cháu hiền lương, giàu sang một cách vẻ vang, sống lâu thường đặng biếu tặng lễ vật, được ban thưởng…
Chọn bếp
Chọn bếp về Khôn (Tây Nam). Bếp Khôn cũng như chủ Khôn, đối với cửa Kiền (Tây Bắc tương sinh có đủ âm dương và đồng các Diên Niên đắc vị, nó làm gia tăng có lượng các điều tốt cửa Diên Niên trạch (phương án chọn).
Bếp đặt tại Cấn (Đông Bắc). cửa tại Kiền Tây bắc thì bếp Cấn Đông Bắc thừa Thiên Y là một phúc thần đắc lực tại bếp, giải trừ được mọi bệnh hoạn, tai nạn. Thiên y thổ lâm cấn thổ đăng diện nên người việc may, nam nữ trong nhà đều hảo thiện, thường tế nhân lợi vật. Bếp Cấn hỗ biến với chủ Khôn được sinh khí là thêm tốt.
Về màu sắc, vật liệu
Chủ nhà sinh 1959, mệnh bình địa mộc. Theo nguyên lý ngũ hành nên lấy màu của thủy (thủy sinh mộc), màu của thủy gồm màu xám (chọn màu ngói xanh xám) hoặc màu ghi (màu của tường bên ngoài bằng cách giảm sắc độ của màu trắng bên ngoài). Ngoài ra lấy màu dưỡng cũng được. Cũng theo nguyên lý đó thì có thể dùng màu sắc có yếu tốt hỏa (màu đỏ của gỗ). Về vật liệu, tương tự người mệnh mộc nên dùng vật liệu nhiều về gỗ, hạn chế dung nhiều kim loại trong nhà.
Khi ngủ, người trạch Khôn (tây tứ) nên quay mặt về tây tứ gồm Tây, Tây Bắc, Tây Nam đều được tốt.
Con gái sinh năm 1985, năm Âm lịch Ất Sửu, mệnh Hải Trung Kim, Quái Ly thuộc Đông tứ trạch. Người Đông tứ nên chọn về Đông tứ trạch cho phòng ở. Cụ thể, nên chọn phòng ngủ nhỏ phía sau của tầng 3.
Về màu sắc, người thuộc kim nên chọn màu tươi sáng. Màu của kim là màu trắng, màu vàng (theo nguyên lý ngũ hành thể sinh kim) hoặc màu nâu sậm của thủy. Số thuận lợi nên dung số 3, 2, 7 được tốt.
Con trai sinh năm 1994, năm Âm lịch Giáp Tuất, mệnh Sơn đầu hỏa, quái Càn thuộc Tây tứ trạch. Người Tây tứ nên chọn về Tây tứ trạch cho phòng ở. Cụ thể, nên chọn phòng ngủ phía ngoài của tầng 3. Hướng giường ngủ về Tây Bắc, Tây Nam đều tốt.
Về màu sắc, người thuộc mệnh Hỏa nên dung màu đỏ, tím của hỏa. Dùng màu xanh lá cây theo nguyên lý mộc sinh hỏa, hoặc dung màu vàng theo nguyên lý hỏa sinh thổ đều được tốt (theo nguyên lý ngũ hành tương sinh).
KTS Vũ Quang Định
Công ty CP Kiến trúc ASPACE
Liên hệ : chuyển nhà trọn gói , dịch vụ chuyển văn phòng
|